Effortless Riverside Living
Positioned within the exclusive Mt Henry Estate, this elegant residence captures the essence of refined family living with timeless design, abundant natural light, and a superbly functional layout. Just moments from the Canning River foreshore, Curtin University, Aquinas College, parks, shopping precincts, and freeway access, it delivers the perfect balance of lifestyle and convenience.
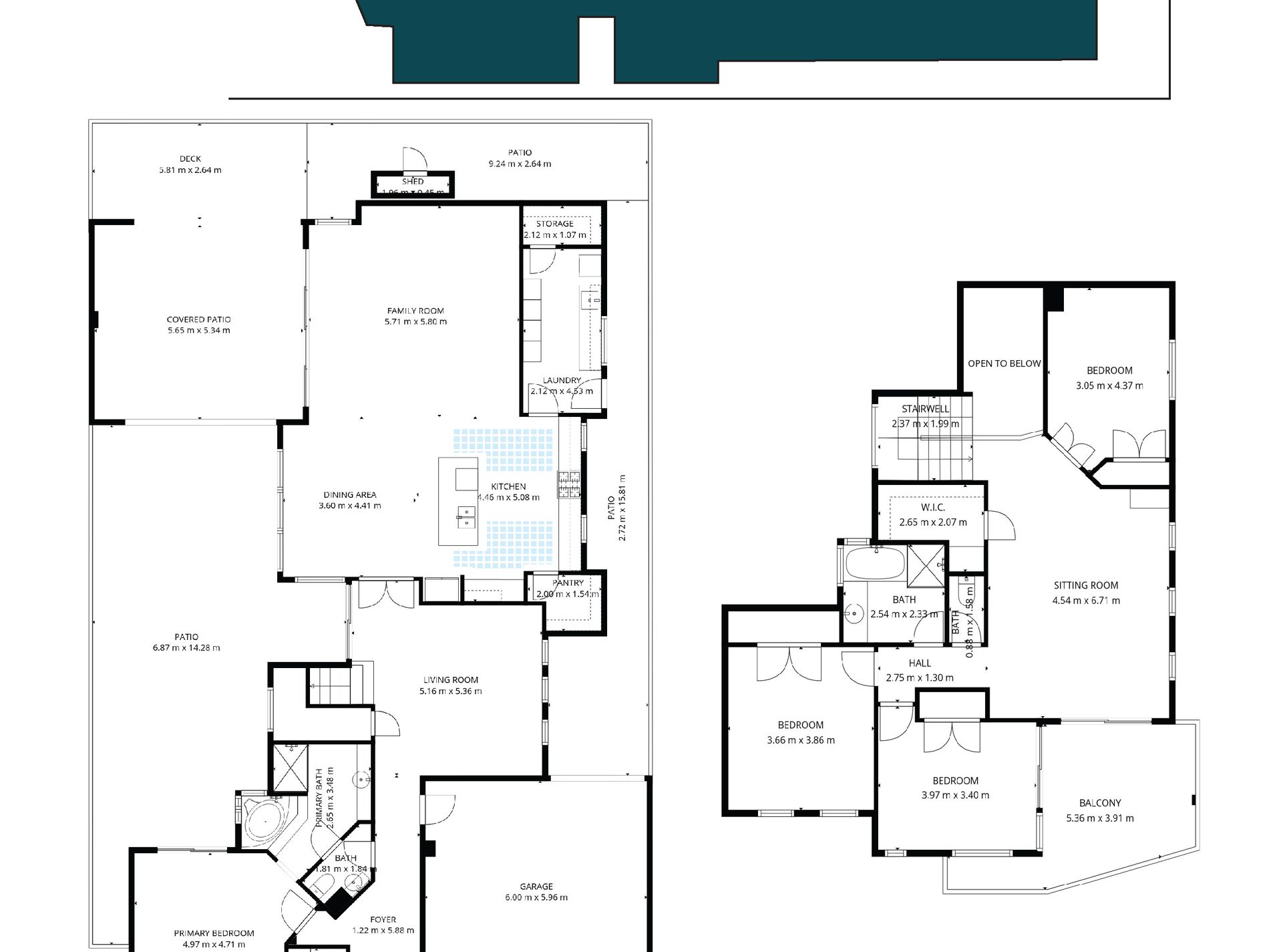
The grand entry opens to light-filled interiors enhanced by solid timber flooring and soaring high ceilings. Designed for comfort and connection, the ground level features a spacious master suite opening onto a private deck, complete with a custom walk-in robe and a luxurious spa ensuite. A separate lounge room with views of the tranquil water feature provides a serene escape, while the expansive open-plan living and dining area flows effortlessly to the cedar-lined alfresco - the ideal space for entertaining family and friends year-round.
The gourmet kitchen anchors the home, fitted with quality appliances, generous storage, and a central breakfast bar, perfect for everyday family living. The ground floor also includes a large laundry with walk-in linen, and a double garage with extra storage for a boat or recreational gear.
Upstairs, three generous bedrooms with built-in robes are complemented by a stylish family bathroom, separate toilet, and a spacious living retreat that opens onto a wide balcony. From here, you can enjoy leafy treetop views and glimpses of the river - a serene outlook for evening relaxation or weekend gatherings.
Set on a 450sqm block with landscaped gardens, pond, and deck area. Every detail has been considered - ducted reverse-cycle air-conditioning, ample storage throughout, and a design that prioritises comfort, style, and functionality.
Offering elegant proportions and a family-oriented layout in one of Salter Point's most desirable pockets, 13 Crowley Vista is a home that truly defines effortless modern living.
For further information or an obligation free appraisal, contact listing agent Eric Hartanto.
Location Particulars (approx.):
• Perth CBD: 9.5 km
• Curtin University: 2.8 km
• Aquinas College: 1.1 km
• Penrhos College: 4.5 km
• St Pius Primary School: 2.8 km
• Santa Maria College: 3.5 km
• Waterford Plaza Shopping Centre: 2.3 km
• Swan River Foreshore: 0.6 km













































