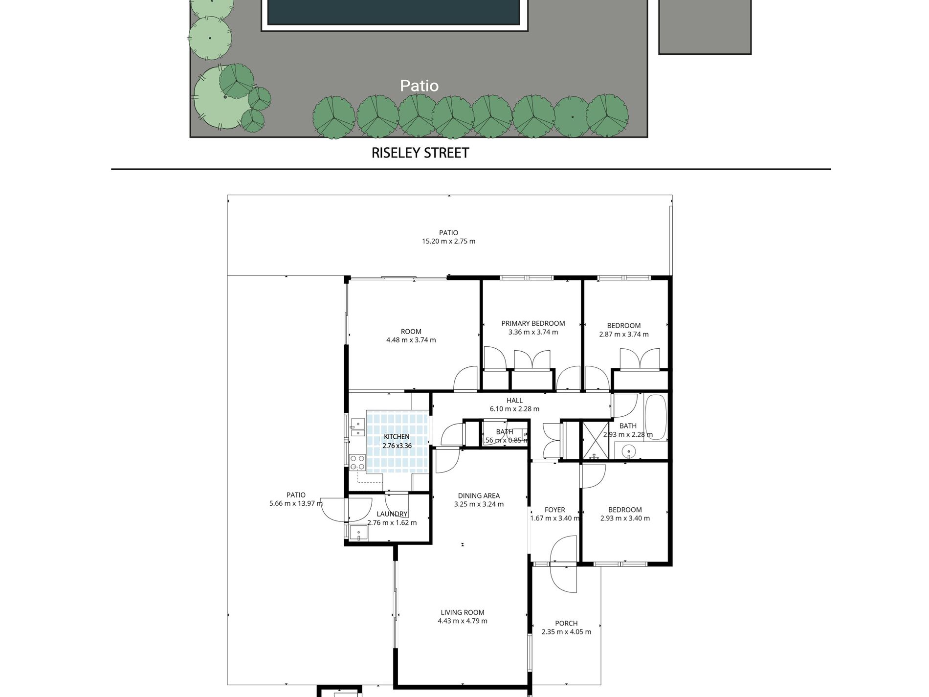
Positioned in a convenient and well connected pocket of Booragoon, this three bedroom, one bathroom home with a single car garage presents an exciting opportunity for those looking to personalise, renovate or invest with confidence.
The home offers a practical and easy living layout, providing a solid foundation to update and enhance over time. Each of the three bedrooms is well proportioned, while the central bathroom and functional kitchen allow you to comfortably move in and plan future improvements at your own pace. Whether you choose to refresh the interiors, extend or completely transform the space, the potential here is clear.
One of the standout features is the abundance of outdoor space. The gardens offer a generous blank canvas, perfect for creating your own private sanctuary. Imagine established greenery, productive veggie beds, a tranquil courtyard or an outdoor entertaining area tailored to your lifestyle. This is a rare opportunity to enjoy garden living while still being so close to key amenities.
Adding to the appeal is the property's unique pedestrian access directly onto Riseley Street. This provides effortless access to bus routes, making daily commuting simple and convenient. It is an ideal feature for those who value connectivity without compromising on privacy within the home itself.
Located moments from local shops, parks, schools and major retail hubs, this address delivers everyday convenience in a highly sought after suburb. With its combination of position, flexibility and future potential, this home is perfectly suited to first home buyers, renovators or investors looking to add value over time. A property that invites creativity and rewards vision, ready for its next chapter to be written.
The property is to be sold on an 'as is, where is' basis.
For further information or an obligation free appraisal, contact listing agent Eric Hartanto.
Disclaimer:
Whilst every care has been taken in the preparation of this information, its accuracy cannot be guaranteed. Prospective purchasers should make their own enquiries to satisfy themselves on all pertinent matters. The details herein do not constitute any representation by the vendor or the agent and are expressly excluded from any contract.



































































